This is about : Hiša M by SoNo Arhitekti
And this article : Hiša M by SoNo Arhitekti
Article Hiša M by SoNo Arhitekti,
Hiša M by SoNo Arhitekti
Hiša M was designed in 2015 by the Ljubljana-based SoNo Arhitekti.The private residence is located in Slovenia and covers an area of 3,121.5 square feet.
Hiša M by SoNo Arhitekti:
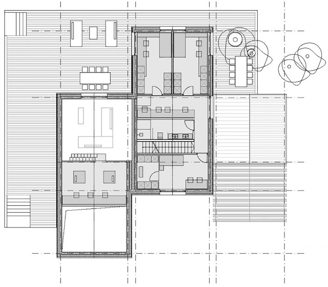
“One-family villa M is located in an area, which represents a typical Slovenian landscape. That is why the design derives from standard architectural elements, from which, one is dominant – gable roof.
The house is made out of three elongated volumes with symmetrical gable roofs, which are set in a way that creates a dynamic ground floor organisation. It accommodates and serves the needs of the modern family and provides the highest level of comfort and quality living.
Uniformed facade and roof’s form emphasize the dynamic of the three volumes especially with the combination of dark and light colour shades as well as the use of the materials themselves – pattern of wood panels and fiber-cement panels.
Dark-light contrast facade complements the neighboring birch groves and its surrounding landscape. The final result presents a dream house for the investor and a quality addition to the Slovenian residential topography as well.”
Photos by: Žiga Lovšin
Informations Hiša M by SoNo Arhitekti finished we discussed
A few of our artikel about the Hiša M by SoNo Arhitekti, hopefully can provide a reference for you to build your dream home.
you've finished reading Hiša M by SoNo Arhitekti and many articles about home design in our blog this, please read it. and url link of this article is http://sophiamagnolia.blogspot.com/2015/07/hisa-m-by-sono-arhitekti.html Hopefully discussion articles on could provide more knowledge about latest home design.
Tag : Hiša M by SoNo Arhitekti,




















0 Response to "Hiša M by SoNo Arhitekti"
Post a Comment